Miundo 5 ya Crane ya Kiwanda cha Karatasi kwa Mipangilio ya Warsha ya Sekta ya Karatasi bila Juhudi

Tarehe: 19 Februari 2025

Kulingana na uzoefu wa miaka katika matengenezo na mabadiliko ya utengenezaji wa crane, kupitia uchanganuzi na ulinganisho wa mpangilio na aina mbalimbali za korongo kwenye semina ya kinu cha karatasi, kuweka mbele uteuzi unaofaa na mpango bora wa mpangilio. Maandalizi au mabadiliko ya kiufundi ya miradi mipya na ya zamani katika vinu vya karatasi, muundo wa crane ya kinu au matengenezo na mabadiliko ni ya thamani ya juu ya kumbukumbu.

Umuhimu wa uteuzi unaofaa wa cranes na mpangilio bora

Katika warsha ya kinu cha karatasi, crane ni kiungo muhimu katika mchakato wa kutengeneza karatasi, hasa kutumika kwa ajili ya kuinua vifaa vya mashine ya karatasi na ufungaji, kazi ni busy sana. Kwa sababu ya mchakato maalum wa utengenezaji wa karatasi, mazingira ya warsha ya karatasi ni kali (joto la juu, unyevu wa juu, hewa na vumbi la karatasi) na kiwango cha matumizi ya crane na mzunguko wa matumizi na kadhalika. crane ya kinu ya karatasi na korongo za daraja la jumla zina sifa dhahiri. Kwa hiyo, uteuzi wa busara na mpangilio wa crane hauwezi tu kupunguza uwekezaji wa awali wa crane na gharama za ujenzi wa mimea lakini pia kupunguza gharama za uendeshaji wa crane na gharama za matengenezo, kupunguza upotevu wa muda wa mashine ya karatasi, kuboresha ufanisi wa ushirika na kuongeza faida ya ushindani wa makampuni ya biashara.

Muundo na mpangilio wa crane ya kinu ya karatasi iliyopita

Hapo awali, wengi karatasi karatasi viwanda warsha kubuni mpangilio wa korongo 3, korongo kutumia umeme mbili mhimili daraja muundo, kuinua utaratibu kwa kutumia winchi fomu. Miongoni mwao, sehemu yenye unyevunyevu ya mashine ya karatasi ina kreni ya daraja la troli 3 (hapa inajulikana kama daraja la mihimili miwili), inayotumika hasa kwa ajili ya matengenezo ya mashine ya karatasi (inayojulikana kama 'kreni za huduma'); kada za mashine za karatasi zina seti mbili za daraja moja la kitoroli la mbili, ambalo hutumika sana kwa kuinua safu za karatasi (inayojulikana kama 'crane ya karatasi'), 1 kwa kazi ya kila siku, nyingine 1 kwa nakala rudufu, ili kuzuia kutofaulu kwa kreni kunasababishwa na kukatika kwa mashine ya karatasi, angalia Mchoro 1. Korongo 3 hazitumiwi kikamilifu, ambazo hazitumiki kwa muda mrefu, ambazo hazifanyi kazi kwa muda mrefu, ambazo hazifanyi kazi kwa muda mrefu. kuongeza sana gharama ya uwekezaji, lakini pia kuongeza sana gharama ya usimamizi wa vifaa, matengenezo, vipuri na kadhalika.

Kwa sababu mahitaji mengi ya kiwango cha kufanya kazi cha crane ya karatasi ni ya juu zaidi, mashine nzima A6, wakala wa M6, wakati kiwango cha kufanya kazi cha pandisha la kawaida la umeme ni cha chini (wengi.

5 Paper Mill Crane Designs for Effortless Paper Sekta ya Mipangilio kesi

Fomu ya kisasa ya kinu ya karatasi ya crane na mpangilio

Kupitia uchanganuzi wa kina wa kiufundi, muundo wa busara na uteuzi wa vipengee vya ubora wa juu, unaweza kutumia 2 (au hata kidogo kama 1) daraja la pandisha la umeme linaloshikamana mara mbili badala ya daraja 3 la ulimwengu la umeme lililopita. Kwa njia hii, idadi ya cranes inaweza kupunguzwa kwa 1/3, lakini pia kutokana na kupunguza shinikizo crane gurudumu, kupunguza urefu, sambamba na kupunguza wimbo boriti sehemu nzima, safu ya msalaba-sehemu, kufuatilia specifikationer, kupunguza urefu wa ujenzi wa mimea, kuokoa uwekezaji wa jumla ya kuhusu 35%. Kuokoa nishati na kuokoa nishati kutokana na kupunguzwa kwa nguvu ya crane. Ubunifu na mpangilio kama huo, unaotumiwa katika mistari mingi ya karatasi, miaka 7 ya uzoefu wa kusanyiko, na faida dhahiri za kiuchumi. Uchambuzi ufuatao unalinganisha faida na hasara za mipangilio na aina mbalimbali za crane.

Miundo 5 ya Crane ya Kiwanda cha Karatasi kwa Mipangilio ya Warsha ya Sekta ya Karatasi bila Juhudi

Programu ya crane ya kinu ya karatasi 1

Kila warsha karatasi kuanzisha seti 2 ya daraja moja, 1 ni karatasi mashine kavu mwisho wa karatasi roll crane, 1 ni mashine karatasi mvua mwisho wa crane huduma (kulingana na hali halisi ya mashine ya karatasi na kadhalika, na hata inaweza tu kuanzisha crane). Kuna trolleys 3 kwenye daraja la crane. Trolleys 2 za nje hutumiwa kwa kuinua rolls za karatasi, rolls za karatasi tupu na madhumuni mengine; kitoroli cha kati kinatumika kwa uingizwaji wa roli na mitungi mbalimbali ya mashine ya karatasi na huduma zingine za matengenezo, na pia inaweza kutumika kama kitoroli cha kuhifadhi nakala za kuinua karatasi ikiwa toroli zozote za nje hazifanyi kazi. Kwa kusudi hili, kasi ya kuinua ya trolleys 3 ni sawa na kasi ya kukimbia ya trolleys.

5 Muundo wa Crane wa Kiwanda cha Karatasi kwa Mipangilio ya Warsha ya Sekta ya Karatasi bila Juhudi1

Kwa ujumla utaratibu wa kunyanyua wa toroli 2 za nje una darasa la kufanya kazi la angalau M6 (FEM 3m) na toroli ya katikati hutumiwa zaidi kwa huduma za matengenezo, ikilinganishwa na toroli za nje. Inaweza kuwa na kiwango cha chini cha kufanya kazi, kwa mfano M4 (FEM 1 Am), lakini ikiwa na uwezo wa juu wa kuinua, kwa kawaida juu mara mbili ya ile ya nje. Kwa mfano: 20 t/M6 + 40 t/M4 + 20 t/M6. Kwa njia hii, trolley ya kati inaweza kuinua silinda peke yake, na vigezo vifuatavyo.

KategoriaTrolley ITrolley IITrolley III
Kiwango cha kazi cha utaratibu wa kuinuaM6M4M6
uwezo wa kuinua/t10~6020~12010~60
Kasi ya kuinua/(m/dakika)4~83.2~84~8
Kiwango cha kufanya kazi cha TrolleyM5~M6M4~M5M5~M6
Kiwango cha kufanya kazi cha craneM5~M6
Uwezo wa kuinua uliopendekezwa, kiwango cha kufanya kazi na kasi

Faida kubwa za aina hii ya ujenzi wa crane ni mchanganyiko na kuegemea. Crane ya karatasi pia inaweza kutumika kwa huduma au kama nakala rudufu ya kreni ya huduma. Kuegemea juu ni kutokana na ukweli kwamba kushindwa kwa yoyote ya trolleys haitaathiri mchakato wa uzalishaji.

Ikiwa mpangilio wa warsha wa cranes 2 kama hizo, kuegemea ni kubwa sana, upotezaji wa wakati wa chini ni karibu 0. Ikiwa tu mpangilio wa crane 1, faida ni uwekezaji mdogo, lakini pia kukidhi mahitaji ya kila siku ya uzalishaji kwa matumizi, hasara ni kwamba kushindwa kwa utaratibu wa uendeshaji wa trolley kubwa kutaathiri uzalishaji, inapaswa kuimarisha kazi ya matengenezo ya kawaida ya crane.

Programu ya crane ya kinu ya karatasi 2

Ni lahaja ya mpango 1, crane daraja trolleys 2 tu, ambayo 1 tu 1 hoisting utaratibu, Trolley nyingine ina 2 hoisting utaratibu, kuu ndoano fomu. Utaratibu wa kuinua na uwezo mkubwa wa kuinua hupangwa katikati, kwa mfano 20 t+40/20 t. Vile vile, darasa la kazi la 20 t ni M6 na darasa la 40 t ni M4. Ulinganifu mwingine unapatikana katika mpango 1.

5 Muundo wa Crane wa Kiwanda cha Karatasi kwa Mipangilio ya Warsha ya Sekta ya Karatasi bila Juhudi kisa2

Faida ya mpango huu wa ujenzi ni kwamba trolley ni compact, kurahisisha udhibiti wa udhibiti wa umeme, kuokoa muundo wa chuma na vifaa vya kudhibiti umeme, kupunguza gharama za utengenezaji wa crane. Hasara kuu ni kwamba kasi ya traverse haijasawazishwa kwa sababu ya mizigo tofauti ya taratibu 2 za kukimbia, na hatua fulani zinahitajika kuchukuliwa.

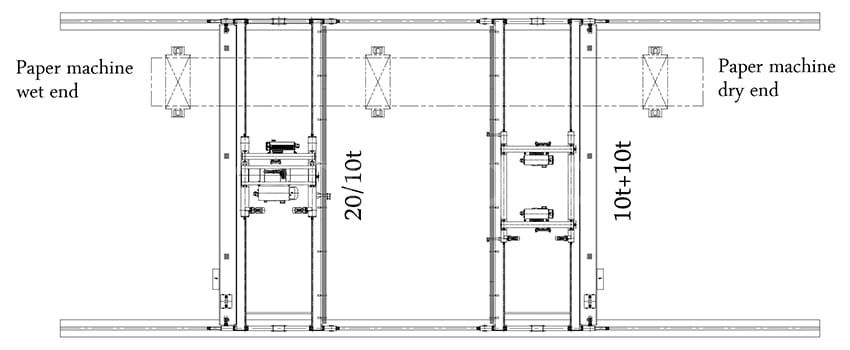
Programu ya crane ya kinu ya karatasi 3

Kila warsha karatasi kuanzisha 2 tofauti daraja, karatasi mashine mvua mwisho wa mpangilio wa 3-trolley huduma crane, karatasi mashine kavu mwisho wa mpangilio wa crane mbili-trolley karatasi roll. Kazi ya crane ya karatasi ni kazi nyingi, roll ya karatasi + kuinua uzito wa boriti karibu na uwezo wa kuinua uliokadiriwa wa crane, kiwango chake cha kufanya kazi angalau M6, kama vile: 20 t/M6 + 20 t/M6. Crane ya huduma inaweza kuwa sawa na muundo wa programu 1, kama vile: 20 t/M6 +40 t/M4 +20 t/M6, nje ya troli 2 kama sehemu ya nyuma ya crane ya karatasi, kasi ya kuinua ya ndoano ya 40t inaweza kuundwa kwa kasi sawa na ndoano ya 20t au ndoano ya 20t sawa. Kasi ya kuinua ya ndoano ya 40t inaweza kuundwa kuwa sawa au tofauti na ile ya ndoano ya 20t. Ikiwa kasi ni tofauti, ndoano ya 40t haiwezi kutumika kuchukua nafasi ya ndoano ya 20t kwa kuinua rolls za karatasi.

5 Muundo wa Crane wa Kiwanda cha Karatasi kwa Mipangilio ya Warsha ya Sekta ya Karatasi bila Juhudi kisa3 1

Kwa vile kreni ya kutoa huduma ya mvua kwa kawaida hutumiwa kidogo, ili kuokoa zaidi gharama za utengenezaji wa kreni, kulingana na hali halisi ya kazi, mashine nzima ya kreni ya huduma na kiwango cha kufanya kazi cha toroli ya nje inaweza kutengenezwa kuwa ngazi moja chini ya ile ya korongo za kada, kwa mfano M5 (FEM 2m).

Kreni hii ya mpangilio wa karatasi yenye troli mbili ni ya kiuchumi zaidi ikilinganishwa na Chaguo la 1, na hitilafu za toroli za pembeni haziathiri uzalishaji kimsingi. Sawa na mpango wa 1, hasara ni kwamba sehemu ya mvua ya crane ni kawaida ya matumizi ya chini, ikiwa mashine ya karatasi imesimama kwa muda mrefu juu ya mwisho wa mvua wa crane, joto la juu, unyevu na uchafu wa karatasi, nk. kwenye muundo wa chuma wa crane na kutu ya mfumo wa kudhibiti umeme ni kubwa zaidi, inapaswa kujaribu kuegesha mahali pa unyevu kutoka kwa kreni.

Programu ya crane ya kinu ya karatasi 4

Kila semina ya karatasi ilianzisha mashine 2 tofauti za daraja, mpangilio wa mwisho wa mashine ya karatasi ya crane ya huduma, mpangilio wa mwisho wa mashine ya karatasi ya crane moja ya kitoroli.

5 Muundo wa Crane wa Kiwanda cha Karatasi kwa Mipangilio ya Warsha ya Sekta ya Karatasi bila Juhudi4

Crane ya karatasi ya karatasi ni ndoano 2 kutoka kwa pointi mbili za kuinua za trolley sawa na vigezo vifuatavyo. Muundo huu unafaa kwa uwezo mdogo wa kuinua na upana mwembamba wa mashine ya karatasi. Faida kubwa ya aina hii ya crane ni kwamba ndoano 2 zimeunganishwa kwa mitambo, lakini umbali kati ya ndoano 2 hutofautiana kidogo na urefu wa kuinua. Faida ni kupunguza idadi ya trolleys, akiba kubwa ya gharama. Hasara ni kwamba wakati utaratibu wa kukimbia wa trolley inashindwa, itaathiri uzalishaji, na inapaswa kuimarisha matengenezo ya kila siku ya crane.

Kategoria2.5t+2.5t 5t+5t 10t+10t 
Kiwango cha kazi cha utaratibu wa kuinuaM6M6M6
uwezo wa kuinua/t51020
Kasi ya kuinua/(m/dakika)1/6.31/6.30.66/4
Kiwango cha kufanya kazi cha TrolleyM5~M6M5~M6M5~M6
Kiwango cha kufanya kazi cha craneM5~M6M5~M6M5~M6
Daraja pamoja na toroli, ndoano mbili nje ya reel

Programu ya crane ya kinu ya karatasi 5

Juu ya mashine karatasi ya kuanzisha daraja 3-trolley kwa ajili ya matengenezo ya mashine ya karatasi au chelezo kuinua karatasi Rolls, karatasi mashine kavu mwisho wa mpangilio wa ardhi ya 1 hadi 2 nusu mguu umeme pandisha mlango mashine (kulingana na karatasi line uzalishaji mashine ya kuamua idadi ya vitengo), mlango mashine 2 kulabu inaweza iliyoundwa na kuwa fasta juu ya daraja. faida ya mpangilio huu ni kwamba mashine mlango ni kujitolea na kuinua karatasi roll, alignment lateral ni sahihi, ufanisi wa juu, hasa kutumika katika mpangilio huo semina ina matukio 2 au zaidi karatasi mashine line. hasara ni kwamba uwekezaji wa jumla katika vifaa, miundombinu na nyingine kubwa, uchumi maskini, maombi ya sasa ni kidogo na kidogo. Mpango wa 1, 2, 3, ikiwa matumizi ya aina ya winchi kuinua utaratibu wa kitoroli, kutokana na hatua ya kuinua ya kikomo cha kushoto na kulia mbali na mstari wa katikati wa wimbo wa kitoroli ni mbali zaidi, kwa ujumla haja ya kusanidi 1 ~ 2 3.2 ~ 10t pandisha umeme, kunyongwa katika sakafu kuu ya boriti au upande wa wimbo kuu wa mstari wa nje. Ikiwa kitoroli cha aina ya pandisha, kwa sababu ya kikomo cha sehemu ndogo ya kuinua, wakati mwingine inaweza kuachiliwa kutoka kwa pandisha ndogo, ambayo inaweza kupunguza gharama ya crane.

5 Muundo wa Crane wa Kiwanda cha Karatasi kwa Mipangilio ya Warsha ya Sekta ya Karatasi bila Juhudi5

Kwa sasa, sehemu ya ngazi ya kazi ya kubuni ya hoist ya umeme ya Ulaya inaweza kufikia M6. umeme pandisha kitoroli mwanga uzito, muundo kompakt, high kuinua hatua, pande zote mbili za nafasi ya kikomo ni ndogo, imekuwa sana kutumika katika matukio mbalimbali na viwanda mbalimbali. Idadi kubwa ya mazoezi imethibitisha kuwa, ikilinganishwa na kitoroli cha aina ya winchi, kitoroli cha kuinua sio tu faida ya bei, lakini pia viashiria vya kiufundi na utendaji, maisha, kuegemea na mambo mengine, inaweza kuchukua nafasi kabisa ya aina ya ndani ya aina ya QD ya aina ya winchi.

Hitimisho

Kutoka kwa uzoefu wa miaka ya kubuni na utengenezaji, kutoka kwa mtazamo wa uchumi, vitendo na mzunguko wa matumizi, utaratibu wa mpango wa kipaumbele ni 3, 2, 1, 5, 4. Mashine nzima inachukua fomu ya crane ya mbili ya mhimili na pandisho la umeme, na kipaumbele kwa hoist ya umeme ya Ulaya kama utaratibu wa kuinua, na muundo wa trela kubwa na ndogo ya kifaa cha tatu - inachukua muundo wa gari la tatu. Uchaguzi wa busara na uboreshaji wa mpangilio wa crane ya kinu ya karatasi, sio tu inaweza kupunguza sana gharama za uwekezaji, kupunguza gharama za matengenezo ya crane na gharama za uendeshaji, lakini pia kuboresha ufanisi, kupunguza hasara za muda wa chini, na kuleta faida kubwa za kiuchumi kwa makampuni ya biashara ya karatasi.

Crystal
krystal
Mtaalam wa Crane OEM

Kwa uzoefu wa miaka 8 katika kubinafsisha vifaa vya kunyanyua, ilisaidia wateja 10,000+ na maswali na wasiwasi wao wa kabla ya mauzo, ikiwa una mahitaji yoyote yanayohusiana, tafadhali jisikie huru kuwasiliana nami!

TAGS: Ubunifu wa Crane wa Karatasi
Kiswahili
English Español Português do Brasil Русский Français Deutsch 日本語 한국어 العربية Italiano Nederlands Svenska Polski ไทย Türkçe हिन्दी Bahasa Indonesia Bahasa Melayu Tiếng Việt 简体中文 বাংলা فارسی Pilipino اردو Українська Čeština Беларуская мова Dansk Norsk Ελληνικά Kiswahili